Description
- One Double Bedroom
- Unfurnished
- Top Floor
- Open Plan Living
- Electric Heating
- Kitchen Appliances Included
- Bicycle Storage
- Residents Permit Parking
- Council Tax Band - A
- EPC Rating - E
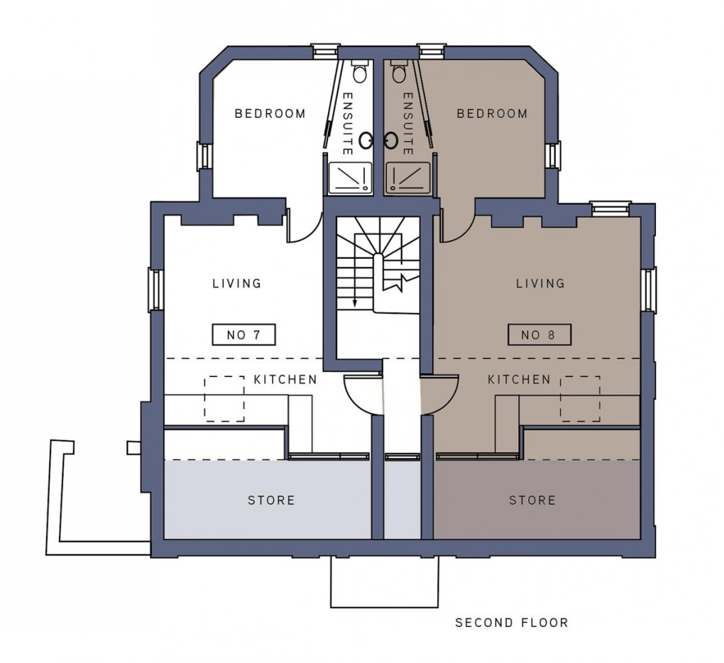
An extremely well-presented one double bedroom top floor apartment situated in Pittville in this magnificent fully refurbished Georgian villa. The property is within a few minutes walk of the High Street in one direction and Pittville Park in the other.
Internally the property has been fully refurbished to a high standard retaining period features with the addition of good quality modern fixtures and fittings. The property briefly comprises of an open plan sitting / dining room with oak flooring contemporary fitted kitchen with quartz surfaces, induction hob, self cleaning oven, dishwasher, washer dryer and fridge, one double bedroom and en suite shower room. The property is warmed by electric heating.
Externally the property benefits from a bicycle store and residents permit parking is available.
STAR LINK SUPERFAST BROADBAND IS AVAILABLE AT AN ADDITIONAL £35 PER MONTH.
The property is suitable for a single professional person only.
Floorplan
EPC
To discuss this property call us on:
Market your property
with Regency Residential
Book a market appraisal for your property today.
