Description
- Four Bedrooms
- Unfurnished
- Two Bathrooms
- Contemporary Living
- Sought After Location
- Enclosed Rear Garden
- Off Road Parking
- EV Charging
- Council Tax Band - To be banded
- EPC Rating - B
Situated in an enviable location in the sought after Leckhampton area, close to the amenities of Bath Road, Cheltenham College and Central Cheltenham. This contemporary four bedroom detached home is a wonderful example of modernist architecture and offered to let on an unfurnished basis.
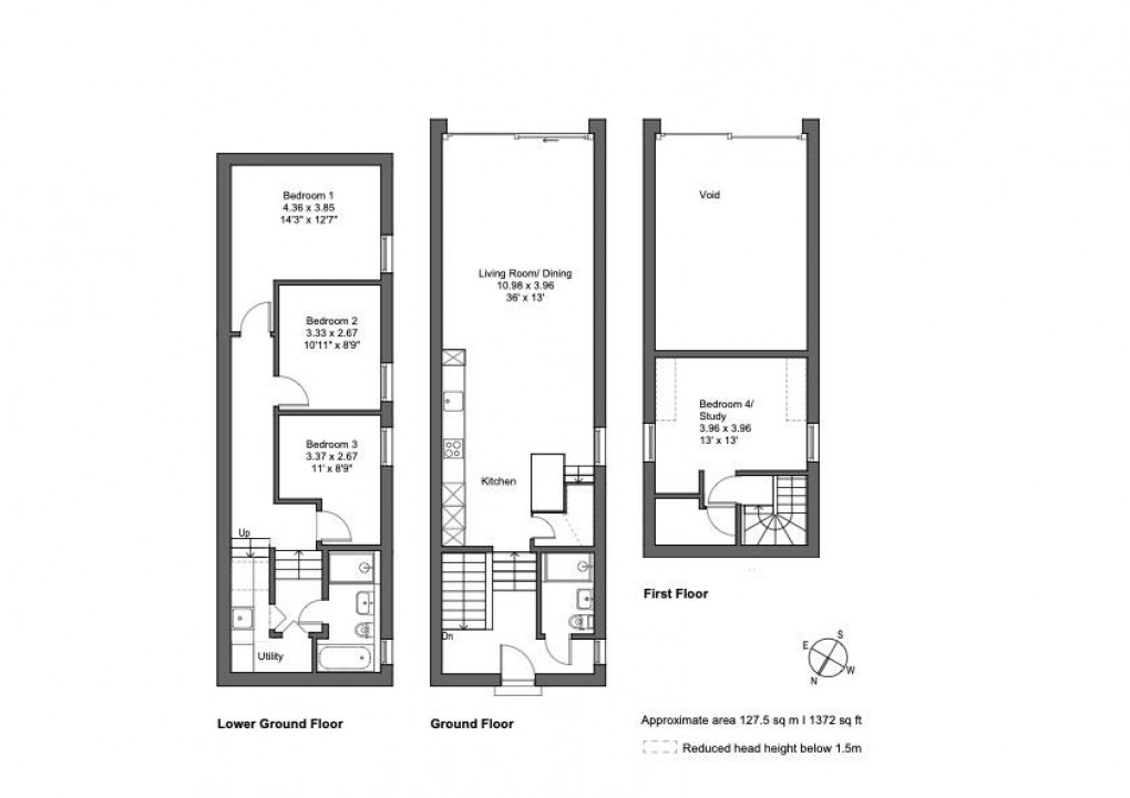
The three-storey building lies low in a courtyard garden, featuring clean lines and an upside-down layout that elevates the living areas above the bedrooms. The entrance hall is a welcoming space with a cloakroom / shower room and steps up to the living space that unfolds in a lateral layout. The kitchen/dining and living room is a large, collaborative space which is ideal for entertaining, cooking and seating. The kitchen itself is fitted with a range of units, integrated appliances and a breakfast bar, this flows into the sitting room, with a double height ceiling and an expanse of glass to optimise the natural light while connecting this area to the garden.
Three bedrooms are positioned on the lower ground, which share a bathroom in addition to a utility room which can be found on this floor. A fourth bedroom/ study is located privately on the top floor with a dedicated stair. The property is warmed by gas central and under floor heating.
Intended to be an extension of the interior accommodation, where the two seamlessly meet, the outside area is surprisingly mature with a private courtyard garden with a backdrop of trees
that include Copper beech, Sequoia and Lebanese Cedar. There is private parking to the front and a shed within the rear garden, ideal for storage, in addition to a charging point for electric cars.
Floorplan
EPC
To discuss this property call us on:
Market your property
with Regency Residential
Book a market appraisal for your property today.
