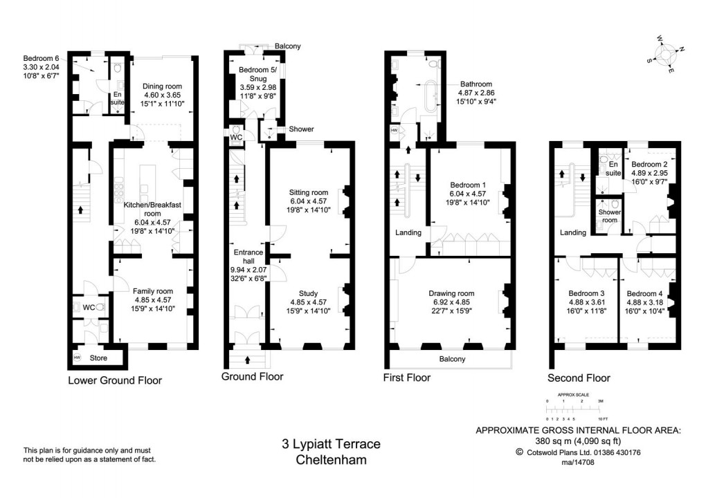
Description
- Six Bedrooms
- Partially Furnished or Unfurnished
- Five Reception Rooms
- Five Bathrooms
- Off Road Parking
- Gas Central Heating
- Period Features
- Desirable Location
- Council Tax Band - G
- EPC Rating - E
A substantial, six bedroom Regency terraced house located on one of the Spa Town's most beautiful period terraces. The property is located in the heart of Montpellier, near the town centre and provides easy access to the A40 / M5 and is within a short walk of both Cheltenham College and Cheltenham Ladies College.
The accommodation is arranged over four floors, with private off-road parking to the front and rear of the property to accommodate three cars with an EV charge point to the rear parking area. The whole terrace is set well back from the road behind wrought iron railings and lawned gardens. To the rear of the property is very private, secure courtyard garden, with planted, raised borders and two separate seating areas.
Offered on a partially furnished or unfurnished basis, the property is entered at the upper ground floor level which comprises of a large entrance hall with stone floors, study / bedroom with shower, an impressive double reception room which runs front to back.
The lower ground floor houses the contemporary fitted kitchen with good quality integrated appliances, breakfast room overlooking the garden, sitting room, a single bedroom with en suite shower room and a useful store cupboard / WC.
The first floor offers a beautiful drawing room overlooking the lawns to the front of the terrace, extremely spacious master bedroom with an abundance of built-in storage and the stylish family bathroom with walk-in shower and freestanding bath.
The second floor of the property has three further double bedrooms each of which has built-in wardrobes and en suite shower room and a further shower room.
The property is warmed by gas central / underfloor heating throughout.
Floorplan
EPC
To discuss this property call us on:
Market your property
with Regency Residential
Book a market appraisal for your property today.
